Dawn Hickernell

Plaza Drive, Boiling Springs, PA 17007

$299,900
  • Plaza Drive, Boiling Springs, PA 17007 Main Photo

8 Total Photos [Click to View All]

Pending
LOT SIZE 2.780 acres MLS#PACB2048598
STATUSPENDING PROPERTY TYPELand - Residential SCHOOLSOUTH MIDDLETON

Property Description

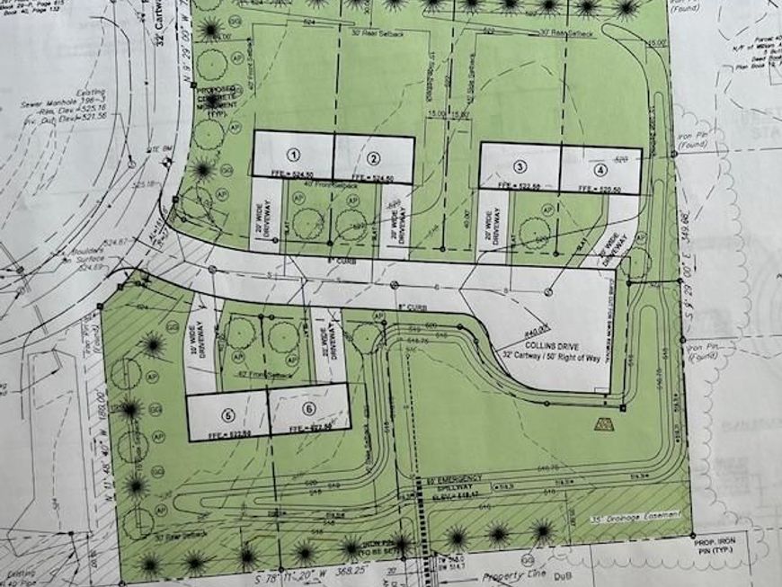
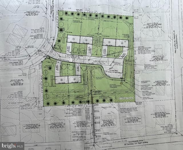
ATTENTION DEVELOPERS & BUILDERS!! LOCATION-LOCATION-LOCATION!! 2.78 ACRE LOT WITH AN APPROVED PLAN FOR 3 DUPLEXES (6 TOTAL UNITS) ON 6 LOTS WITH PUBLIC WATER & PUBLIC SEWER, NATURAL GAS AND ELECTRIC. ALL 6 LOTS ARE WIDE AND DEEP ALLOWING FOR ATTACHED TWO CAR GARAGES. PROPERTY IS LOCATED IN HIGHLY DESIRABLE BOILING SPRINGS LOCATION & SOUTH MIDDLETON SCHOOL DISTRICT WITHIN WALKING DISTANCE TO BOILING SPRINGS CHILDREN'S LAKE, YELLOW BREECHES, COMMUNITY POOL, SCHOOLS, CAFE, KARNS GROCERY STORE, PIZZERIA/ITALIAN RESTAURANT, GAS STATION, POST OFFICE, PARKS, APPALACHIAN TRAIL & ALLENBERRY PLAYHOUSE. THIS PROPERTY IS ZONED RM (RESIDENTIAL MODERATE DENSITY) WHICH PERMITS SINGLE-FAMILY AND SINGLE-FAMILY SEMI-DETACHED (DUPLEXES) DWELLINGS.

Plaza Drive | MLS# PACB2048598

This land located at Plaza Drive, Boiling Springs, PA 17007 is currently listed for sale with an asking price of $299,900. The property has approximately 2.78 Acres. Plaza Drive is located within the SOUTH MIDDLETON school district. Search Boiling Springs real estate on www.dawnhickernell.com today.

Property Features

Property Type: Land - Residential
Lot Size: 2.78 Acres
Taxes: $1,281

Feature Descriptions

HOA Fee: $0.00/Annually
Lot: Level, Subdivision Possible
Lot Dimensions: 2.78 Acre(S)
Municipality: SOUTH MIDDLETON TWP
Sewer: Public Hook/Up Avail
Utilities: Natural Gas Available, Under Ground, Sewer Available, Water Available, Cable TV Available, Electric Available
Water: Public Hook-up Available

Local Schools

High School: BOILING SPRINGS
Middle School: YELLOW BREECHES
Elementary School: W.G. RICE
School District: SOUTH MIDDLETON

Listed By / Shown By

Listed By

Agency Name: Real Estate Excel
Agency Phone: 7172588934

IDX logo

Estimate Your Payment

Estimated Payment

$ 861.67 per month $667.45 Principal & Interest $106.75 Property Tax $87.47 Homeowner's Insurance

Change Payment Information

%
years/fixed
yearly
yearly (est.)
(Monthly PMI fees could increase payment if above 80% LTV)
Getting pre-qualified is the first step to buying a home! GET PREQUALIFIED NOW Home Mortgage Logo

Login to Saved Search

Pixel